Designed for connection and flow, Iredale's open-plan kitchen and dining space is bathed in natural light, with multiple points of access to the outdoors that make everyday living and entertaining effortless. Tucked to the rear of the home, the garage is seamlessly integrated via a dedicated mud room and drop zone - delivering convenience without compromising on design.
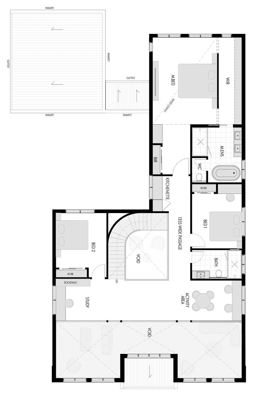
Upstairs, Iredale continues to impress. A spacious landing reveals a thoughtfully designed study nook and activity area, leading to two well-proportioned bedrooms, a shared bathroom, and the master suite. Elevated views over Emu Bottom Reserve and surrounding hillsides bring the outdoors in, enhancing the sense of tranquillity.